Compartilhar
Avenida Lédio João Martins | Kobrasol - São José
Próximo à Ótica Diniz.
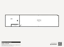
159m²
4 salas
Sem Mobília
1 banheiro
2 vagas
Aceita pet
Elevador
Portaria 24h





R$ 11.900,00
R$ 274,06
A confirmar
Total aproximado: R$ 12.174,06
Este imóvel está com muita procura!




A Giacomelli utiliza a tecnologia 3D para a sua comodidade. Este recurso permite que você faça uma visita virtual de qualquer lugar, sentindo-se como se estivesse no imóvel.

A Giacomelli utiliza a tecnologia 3D para a sua comodidade. Este recurso permite que você faça uma visita virtual de qualquer lugar, sentindo-se como se estivesse no imóvel.
A navegação pode ser feita de qualquer dispositivo e as imagens são de alta definição, possibilitando ter uma visão real do imóvel.
Com essa tecnologia, você também tem acesso à planta baixa e suas medidas, facilitando o planejamento do mobiliário.
Tenha um atendimento online personalizado, sempre que precisar, prático e rápido.
Conheça de forma virtual o imóvel que deseja alugar, através de tecnologias que só a Giacomelli oferece.
Nossas visitas são agendadas e acompanhadas pelos nossos consultores.
Verifique com a Giacomelli, se este imóvel já possui alguma reserva.
Aluguel fácil e rápido por cartão de crédito, seguro fiança ou titulo de capitalização.
Cred Pago/Loft Fiança Aluguel: É uma ferramenta de locação inovadora que descomplica o processo de alugar um imóvel, sem pedir fiador. Saiba mais
Porto Seguro Tradicional: Alugue com seguro fiança e tenha as vantagens do Clube Porto, com ofertas e descontos em diversas empresas parceiras. Saiba mais
PortoCap: É o título de capitalização da Porto Seguro que funciona como garantia de locação. Com ele, é possível substituir a figura do fiador e você ainda concorre a prêmios. Saiba mais
Fiador pessoa física ou jurídicaFiador que tenha imóvel, renda média comprovada de três vezes o valor do aluguel, e pode incluir mais pessoas para compor renda. Saiba mais
Caução de imóvelO imóvel será o garantidor. Nesta modalidade, tanto o locatário como um terceiro poderão deixar um imóvel em garantia de locação. Saiba mais
Preferência de contato:
Você pode solicitar um atendimento a partir de uma lista de imóveis favoritos.
Endereço dos imóveis
Distância
Metragem
Mobília
Garagens
Valor
49m
73m²
Sem Mobília
Sem garagem
R$ 3.400,00
148m
155m²
Sem Mobília
Sem garagem
R$ 13.900,00
207m
55m²
Semimobiliado
Sem garagem
R$ 4.290,00
207m
41m²
Sem Mobília
Sem garagem
R$ 2.990,00
308m
56m²
Sem Mobília
Sem garagem
R$ 4.600,00
A opinião de nossos clientes é muito importante para a Giacomelli